|
Otfried H. Culmann Das Phantastische Museum![]()
Entwurf und Konzeption
Modell: Philipp & Otfried Culmann Das Phantastische Museum – Von der Vision zur RealitätOb konstruktivistische, informelle, naive oder
sonst eine Kunstrichtung, sie haben fast alle ein Museum das als
Schwerpunkt diese Stilrichtung zeigt oder sammelt.
Obwohl beim phantastischen Film Rekordbesuche verzeichnet werden,
die phantastische Literatur oft wochenlang in den
Spitzenbereichen von Bestsellerlisten zu finden ist und
phantastische Kunst zu den ältesten Darstellungsweisen
in der bildenden Kunst gehört, deren Ausstellungen
Besucherrekorde aufweisen, wird von dem überwiegenden Teil
der amtierenden Museumsleiter und einflussreichen
Kunstszeneausstellungsmachern so getan, als gäbe es diese
Kunst heute nicht mehr oder wäre so unbedeutend,
dass man sie nicht zeigt.
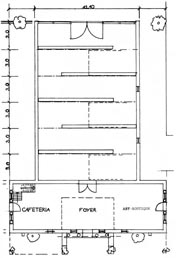
Das Phantastische Museum:Ausstellungshalle,
Die Architektur des Phantastischen Museums unterscheidet sich
deutlich von den üblichen modernen Museumsbauten, die in der Regel als puristische,
konstruktivistische Schuhkartonarchitektur aus Glas, Stahl und Beton errichtet werden
und den Konzepten der Bauhausphilosophie folgen.
Das Phantastische Museum hingegen geht ganz andere Wege und sieht sich eher in der Tradition
eines Gaudi oder der visionären Architektur des Briefträgers Fernand Cheval und anderer
phantastischer Architekturen. Auf die Details möchte ich an anderer Stelle weiter eingehen.
Der Grundriß des Gebäudes ist eine T-Form, an die sich das Nymphaeum in C-Form anschließt.
Der Querbau weist ein großes und zwei kleine Giebeldreiecke auf, die an die Eingänge
klassischer Tempel erinnern.Die gesamten Außenwände sind z.T. mit herausragenden Formen und
farbigen Mosaiken geradezu vegetativ − flechtenartig − wuchernd überzogen, so daß jegliche strenge
Linie der Architektur gebrochen wird. Das Haus ist schon von Ferne durch die Farben und Formgebung
als heitere Architektur zu erkennen.Für die Südpfalz wäre eine solche Architektur und Institution
nicht nur eine Sensation, sondern auch eine wichtige Bereicherung, die sich positiv auf den Tourismus
auswirken würde! Wer einmal darüber nachdenkt, welche markanten Architekturen in der Südpfalz von den
Besuchern besonders wahrgenommen werden, kommt zu folgendem Ergebnis:
Trifels, Berwartstein, Speyerer Dom, Villa Ludwigshöhe, Weintor, sowie einige Burgen,
deren Ruinen man aber nicht mehr als Architektur ansehen kann. Durch das Phantastische Museum bekäme
die Südpfalz eine Architektur und eine Institution, die international Aufsehen erregen würde,
weil sie nicht der üblichen modernen Architektur entspricht, ja eher eine gegensätzliche
Haltung einnimmt! ![]() Finanzierung: Da das Projekt erst kürzlich der Öffentlichkeit, den Künstlern und Interessenten vorgestellt wurde, kann erst über seinen Standort informiert werden, wenn die Art der Finanzierung durch einen oder mehrere Sponsoren feststeht, die z.B. die Patenschaft (bez. Stiftung) für das Museum oder Teile des Museums übernehmen. Durch seine Konzeption und seine Ausstellungen sollte das Museum sich möglichst selbst finanzieren. Kostenberechnung: Museumsgebäude mit Heizung, Elektrik, Erschließung, Wege, Kanal usw. (ohne Nymphäum, künstlerische Ausgestaltung und Grundstückskosten) belaufen sich auf ca. 800 500 .− Euro ; Die Gesamtkosten dürften sich auf 2-3 Millionen Euro belaufen. Ausstellungen: Die Ausstellungen sind der phantastischen, visionären, neomanieristischen, figurativ- symbolistischen und surrealistischen Kunst vorbehalten. Ebenso sollten Fantasy − Kunst, Kunstrichtungen wie die art-brut ein Forum bekommen. Zwei große internationale Ausstellungen sollen pro Jahr gezeigt werden. Diese Ausstellungen können im Austausch mit anderen Phantastischen Museen stattfinden und sollen sowohl das regionale wie überregionale Publikum ansprechen. Das Museum ist von Ende März bis Mitte November geöffnet und über den Winter geschlossen. In den Wintermonaten, und zwischen den Ausstellungen kann das Gebäude für andere Veranstaltungen angemietet werden. Phantastische Architektur: Vobilder, dass ein Phantastisches Museum nicht nur ein „Luftschloß” bleiben muß, möchte ich am Beispiel anderer phant. Architekturprojekte zeigen, die bereits realisiert worden sind. 1. Das „Palais idéal” des Briefträgers Ferdinand Cheval (1879 − 1912) gehört zu den bedeutendsten phant. Architekturen. Der „Stein des Anstoßes” für diesen Bau − war ein bizarr − figurativ geformter Stein, den Cheval gefunden hatte. Dieser Stein weckte in Cheval einen Traum von einem idealen Palast, den er in 35 Jahren in seinem Garten aus gefundenen Steinen und Beton errichtete. Er ist nicht bewohnbar, sondern nur begehbar. Diese Architektur, die keinen praktischen Zweck besitzt, ist nur für ein optisches Erleben gedacht. Hauterives ist ein kleines abgelegenes Dorf bei Lyon. Das Bauwerk wird an den Wochenenden von bis zu 2000 Besuchern besichtigt. 2. Niki de St. Phalle (1930* − 2002) realisierte in der südl. Toskana einen Tarot - Garten mit gigantischen, phantastischen Figuren, die bewohn-bar sind. Mit Hilfe einer Parfümfabrik, für die sie Flakon entwarf, konnte sie diesen Skulpturenpark realisieren, der inzwischen weltweit Beachtung gefunden hat und der von vielen Toskanabesuchern besichtigt wird. 3. Robert Tatin (1902 − 1983) kaufte sich bei Le Mans (Bretagne) ein her −untergekommenes Bauernhaus, an das er 1962 eine phantastische Architektur (Innenhof, Figurenallee, Ausstellungshalle usw. ) anbaute. Inzwischen hat die Kommune das Gebäude übernommen, den Park erweitert, einen großen Parkplatz und einen Empfangspavillon mit Videoraum errichtet. 4. Bruno Weber (1931*) errichtete bei Dietikon /Zürich zuerst ein bizarres Atelierhaus, dem im Laufe der Jahre weitere phant. Gebäude und gigantische Fabelwesen aus Beton folgten. Mit Hilfe von bis zu 8 Mitarbeitern und verschiedener Sponsoren realisiert Bruno Weber auf einem Gelände von ca. 15.000 qm einen einzigartigen, wundervollen Traum. An Wochenenden kommen bis zu 2000 Besucher. Weitere phantastische Architekturen, oder Häuser phantastischer Künstler befinden sich in Wien, wie das Hunderwasser − Haus, Museum Ernst Fuchs, Figueras Dali- Museum, Belgien Paul Delvaux- Museum usw. „Die Kunst wird bald verschwinden. Sie ist bereits auf so minimalen Ausdruck reduziert worden, dass jeder weitere Schritt ihren gänzlichen Untergang bedeuten würde. Dann wird die Architektur ihren Platz einnehmen. Und innerhalb der Architektur wird sich schließlich mittels der Ornamentik ihre Rückkehr vollziehen.” |
|
Das Phantastische Museum Ein Museum für die Phantastische Kunst Das Phantastische Museum - Ein Museum für die Phantastische Kunst - Entwurf: Otfried H. Culmann |
Atelier & Galerie
Otfried H. Culmann
Tel/Fax 06349/5250
Otfried.Culmann@t-online.de
